PRISMIC GALLERY展
Project Date
計画地:東京都港区 PRISMIC GALLERY
製作:2014.12
用途:展示計画
素材:構造用合板
写真: 走出直道
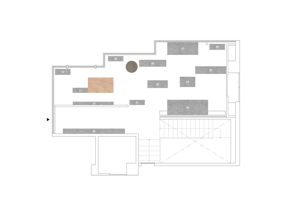
プリズミックギャラリーで行われた「魚谷剛紀・長谷川欣則・細海拓也」展での展示計画。
展示棚を展示場全体に配置させることにより、全体をコントロールできる様な計画にした。余白の大小により動線や溜まりを作り出し、より自由でより自然な動線が生まれる様な動線計画を考えた。外部に向かって図書館の様な表情を持たせることで、街に対しても参加できる視線を作り出せるよう考慮した。






