面影の家
Project Date
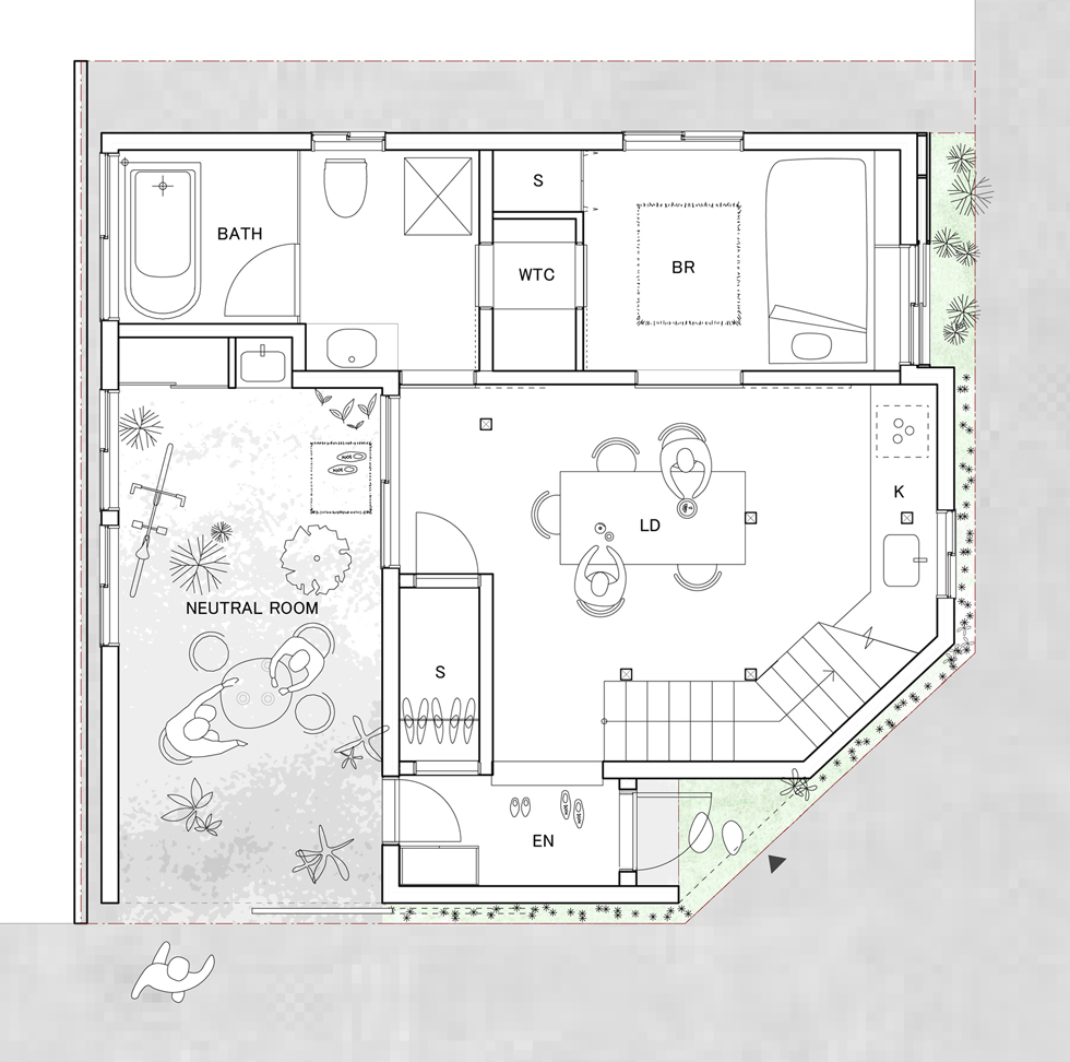
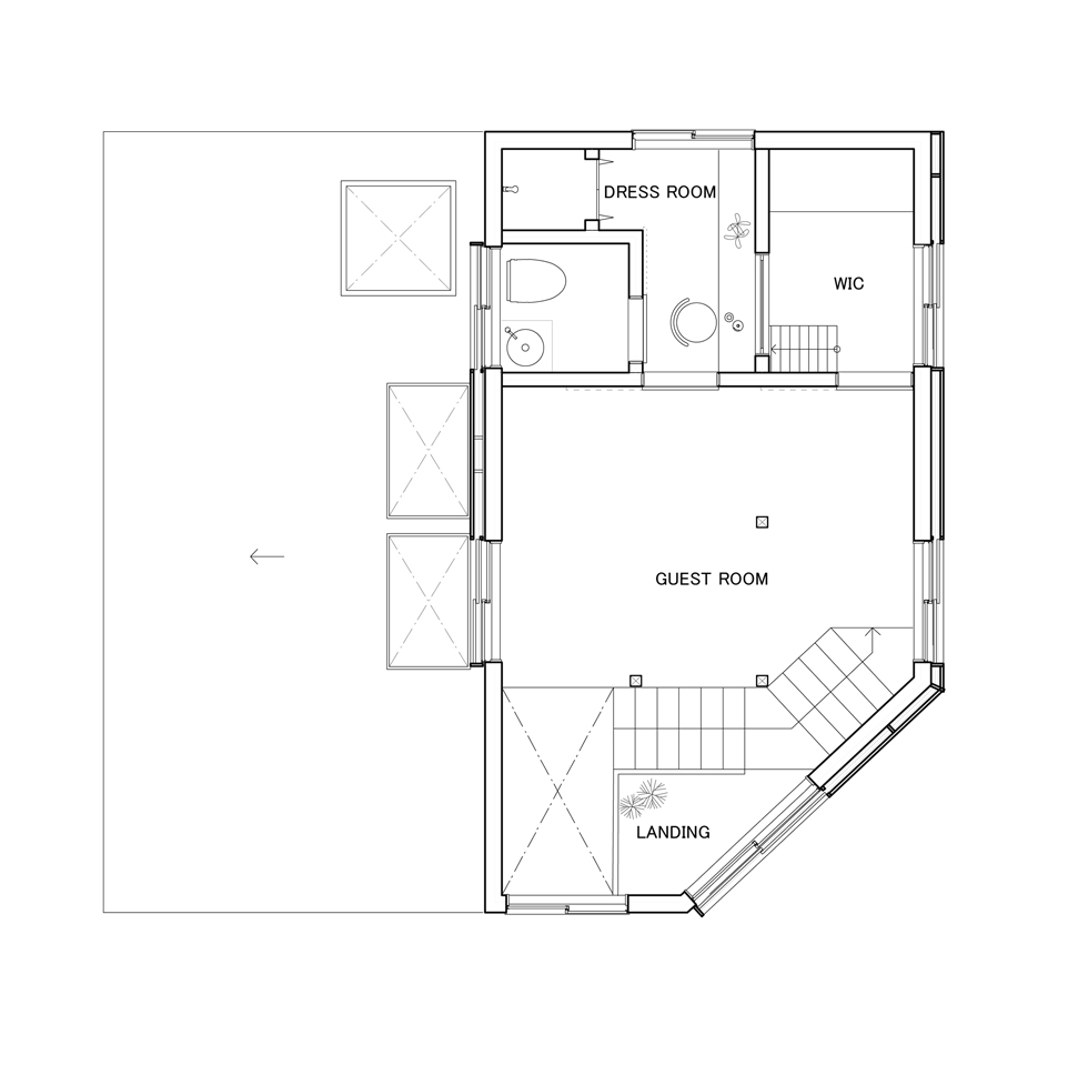
所在地:静岡県沼津市
竣工:2014.10
用途:住宅(改修)
構造:木造
規模:地上2階
最高の高さ:6,810mm
敷地面積:69.15㎡
建築面積:54.86㎡
延床面積:79.12㎡
施工:高波建設
写真: UENOA architects
築50年の住宅の改修計画。建物の形状を残すということだけではなく、開口部・雨戸・庇・梁などの建物を構成する小さな部位を、改修後の住宅にも活かすことで、面影を残しながら街や人に記憶を繋ぐ家を計画した。
















