POLY house
Project Date
所在地:山梨県昭和町
竣工:2016年
用途:住宅
規模:木造2階
最高高さ:7,280mm
敷地面積:256.28㎡
建築面積:64.23㎡
延床面積:117.89㎡
構造:坂田涼太郎 / 坂田涼太郎構造設計事務所
写真: 繁田諭,走出直道,UENOA architects
若い夫婦と3人の子供のために計画された、山梨県に建つ住宅である。
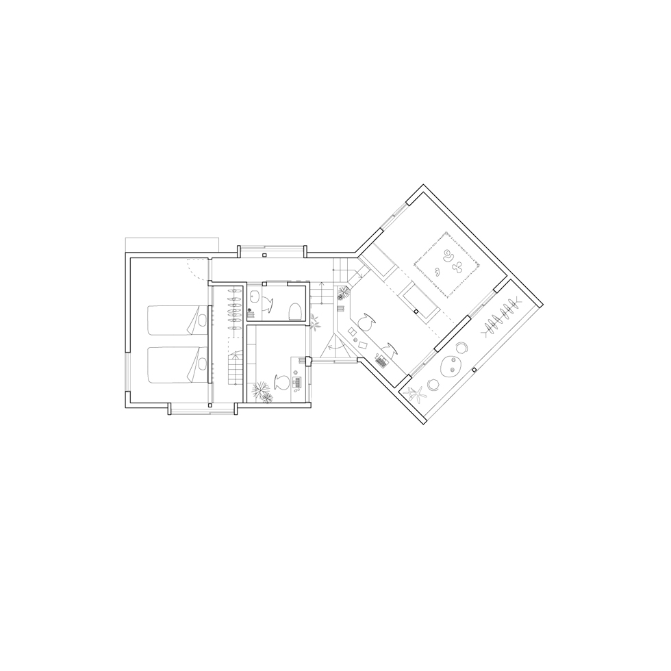
敷地は近年宅地開発された住宅地の端部に位置している。敷地北側には、新しい整列した街区が広がり、敷地の南側には多様な形状の古い街区が広がっている。この2つの環境に対してそれぞれ正面性を持つ建ち方を考えた。そこでは、北側と南側にそれぞれ2つのヴォリュームを、それらの重なった部分に階段室のヴォリュームを設け、3つのヴォリュームが繋がった様な平面とした。3つのヴォリュームが折り重なってできる多様な空間が、この住宅に暮らす賑やかな5人の生活を包み込んでくれることを期待している。
Project Name:POLY house
Architect or Architecture Firm:UENOA / Fumie Horikoshi+Yoshinori Hasegawa
Completion Year:2016
Built Area:117.89 m²
Project Location:Yamanashi,Japan
Photographer:Satoshi Shigeta, Naomichi Sode, UENOA
Structure:Ryotaro Sakata / Ryotaro Sakata Structural Engineers
This is a private residence for a young couple and three children built in Yamanashi Prefecture.
The site is located at the end of a recently developed residential area. On the north side of the site is a new aligned block, and on the south side is an old block of various shapes. We considered how to build a face for each of these two environments.There are two volumes each on the north side and the south side, a step room volume is provided in the overlapping part of them , and it is a plane where three volumes are connected.We hope that the diverse space created by the three volumes will envelop the lively life of five people living in this house.
※建築家Taaka氏による批評文
【建築批評】
Taaka
自分も現場に立つ建築家でありながらこの作品の批評を書いてみたいと思ったのは、昨今国際的にもしばしば話題になる、日本建築家の住宅プロジェクトが見せる一連の流れから意図的に逸脱したと思われる建築的試みが読み取れたからである。この作品を読み解くにあたってまず興味深かったのは、都市的視点から丁寧に考慮されているそのボリュームだった。『正面の家』と言うプロジェクト名が表すように、この作品では道路上で認識される立面が重要な構成原理になっているのがわかる。潜在しているコンセプトは二つのマッスとそれらを繋ぐ小さなマッスであるが、その構成は都市的観点から導き出されたものだとみられる。そしてそれが周辺との関係性を根拠に切妻形に整えられている。正面の家における切妻形はO.M.ウンガースが見せた還元主義やヘルツォーク&ド・ムーロンの家のアイコンとしてではなく、潜在しているコンセプトが「都市化」を経て建築的な構造により具現化された物である。
現実の条件をごまかすことなく、消化するべき建築のテーマとして受け入れている姿勢は、外部のディテールにも反映されている。カタチだけではなく屋根の意味を持つ建築的な切妻屋根や、水処理に適していながら独立した造形を持つ窓、そして木造建築であれば避けれない土台と壁の分け目が正直に現れていることとなど、これらは機能に応じながらも誇張されず最小限の整えられた合理的なディテールである。コンセプトを的確に都市化されたボリュームに展開させ、その流れの上で必然的に導かれる細部のディテールにまで及ぶプロセスでは、アイディアと建設を繋ぐ『物作り』の概念が下敷きになっていることが見受けられる。
ところが内部は一変してコンセプチュアルで鮮やかな空間になっている。建築家によって提示されている階段部のイメージが白く抽象化されている壁と天井が三次元に交差している事から、内部空間に対する彼らの造形意識がいかなるものなのかがうかがえる。寝室以外の空間においては生活を混雑させない領域の独立と部屋らが繋がって見える奥行きのある視野の共存がはかられていて、ほぼすべての視点から空間は重なって見える、現象的想像力が充満している空間である。これは外では経験することのできない個別の内部だと言える。
ディテールにおいても内部は外部のそれとは違う。立ち位置によって常に空間の様が違うように、窓も外の一貫した作りとはうらはらに、どれ一つとして同じ形ではない。木のフレームがあるもの、カーテンレールが組み込まれているフレームが突き出ているものなどなど、そのバリーションもさまざまだ。また空間構造である壁と天井は白く抽象的で、足と手に触れる床と家具そして窓は木材の質感が感じられるよう作られている。そして手と足に触れて材質が感じられる物と、露出している柱や屋根の骨組みの材料が同じ物であることから、経験的な感覚は家の全体的な認識へと広がる。現象的な視覚の奥行きを作ったように、認識においても同様の試みなのではと考える次第である。
外部は都市的観点からボリュームが導きだされ、細部のディテールは気候と施工法を誠実に反映している。対して内部においては個別の空間として現象的コンセプトにガラリと変えている。その細部は反復される形もなく多彩なディテールが組み立てられていて、視覚、触覚、動線から豊富な経験が生まれるようになっている。UENOA architectsの初めての新築プロジェクトであるこの作品では、マッスの構成と空間の作りは最も進んだ工夫を見せる一方、都市的な連続性と造形的調和、外部と内部の明確な区別、そして目的に応じて丁寧に作られているディテールなどから、現代の空間と古典的物作りの融合が独自の作品性だと言えるだろう。
2016年11月12日 ベルリン

































