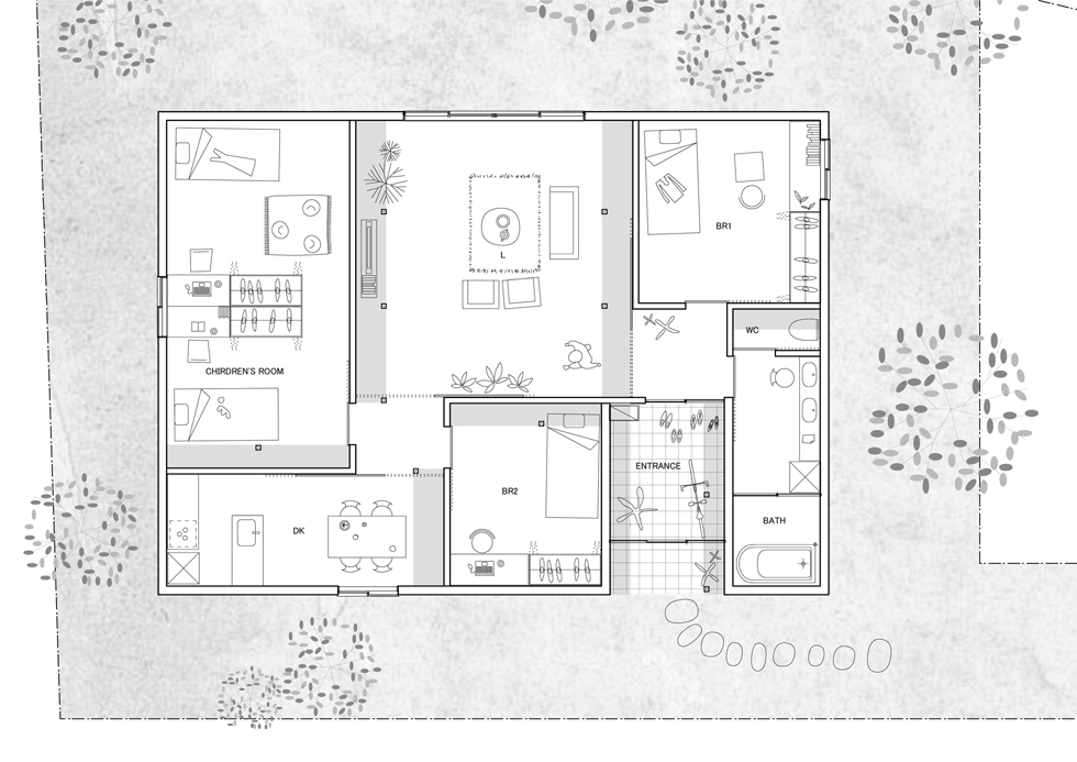
柔らかく分節する家
Project Date
所在地:埼玉県
計画:2011
用途:住宅(計画案)
構造:木造
規模:地上1階
最高高さ:3,686mm
敷地面積:363.75㎡
建築面積:115.93㎡
延床面積:115.93㎡
写真: UENOA architects
各部屋が屋根を持ち、欄間のような開口部により「家と周辺」「部屋と部屋」がプライバシーを確保しながら繋がっている計画をした。屋根の雨水を処理するために大きくした雨樋が、家の内部にも影響し、隣の部屋との関係を柔らかくしている。









